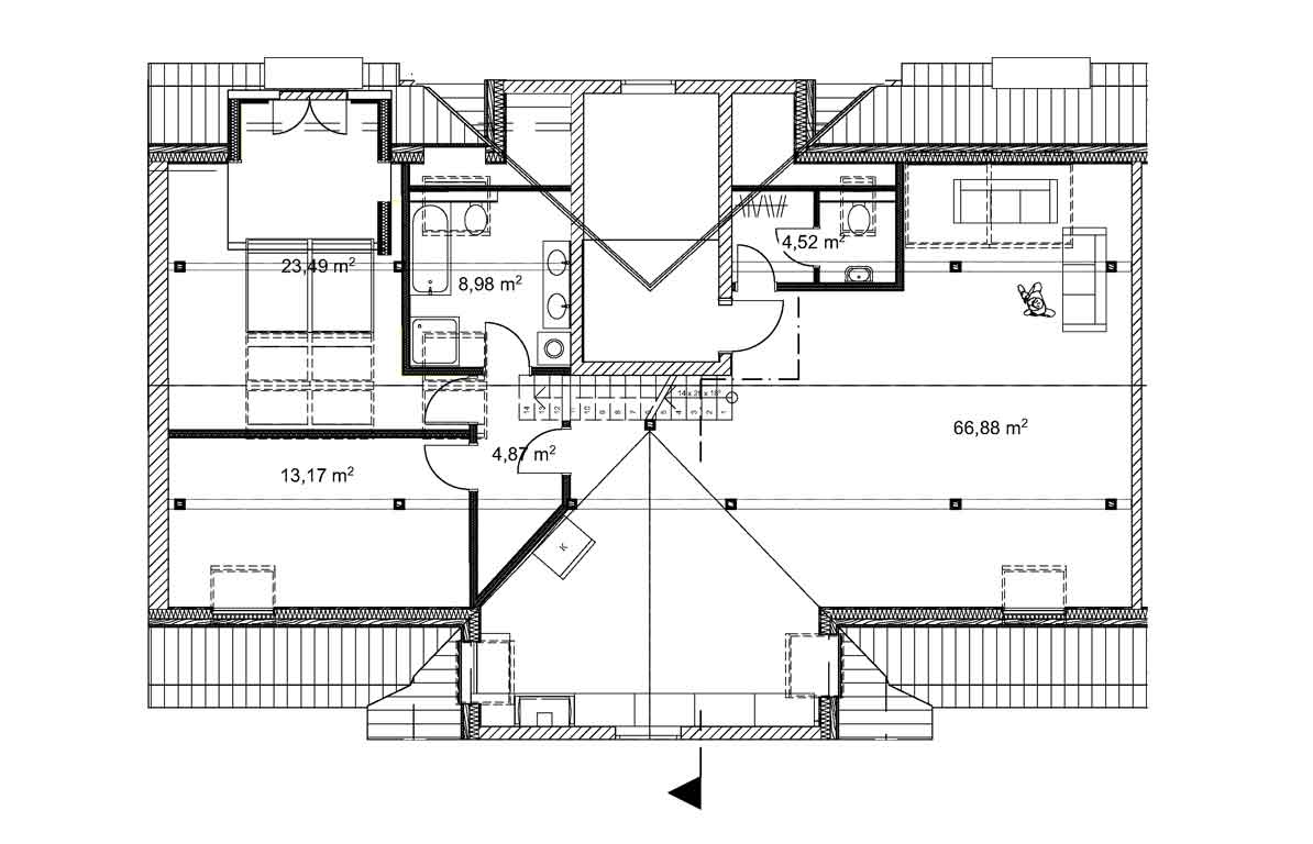
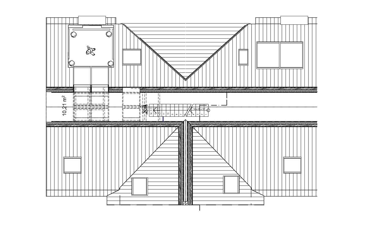
Dachausbau Stresemannstraße

Daten


Sierig

Entwurf

2011 | Hamburg