Marie-Louisen-Stieg

Daten


Sierig

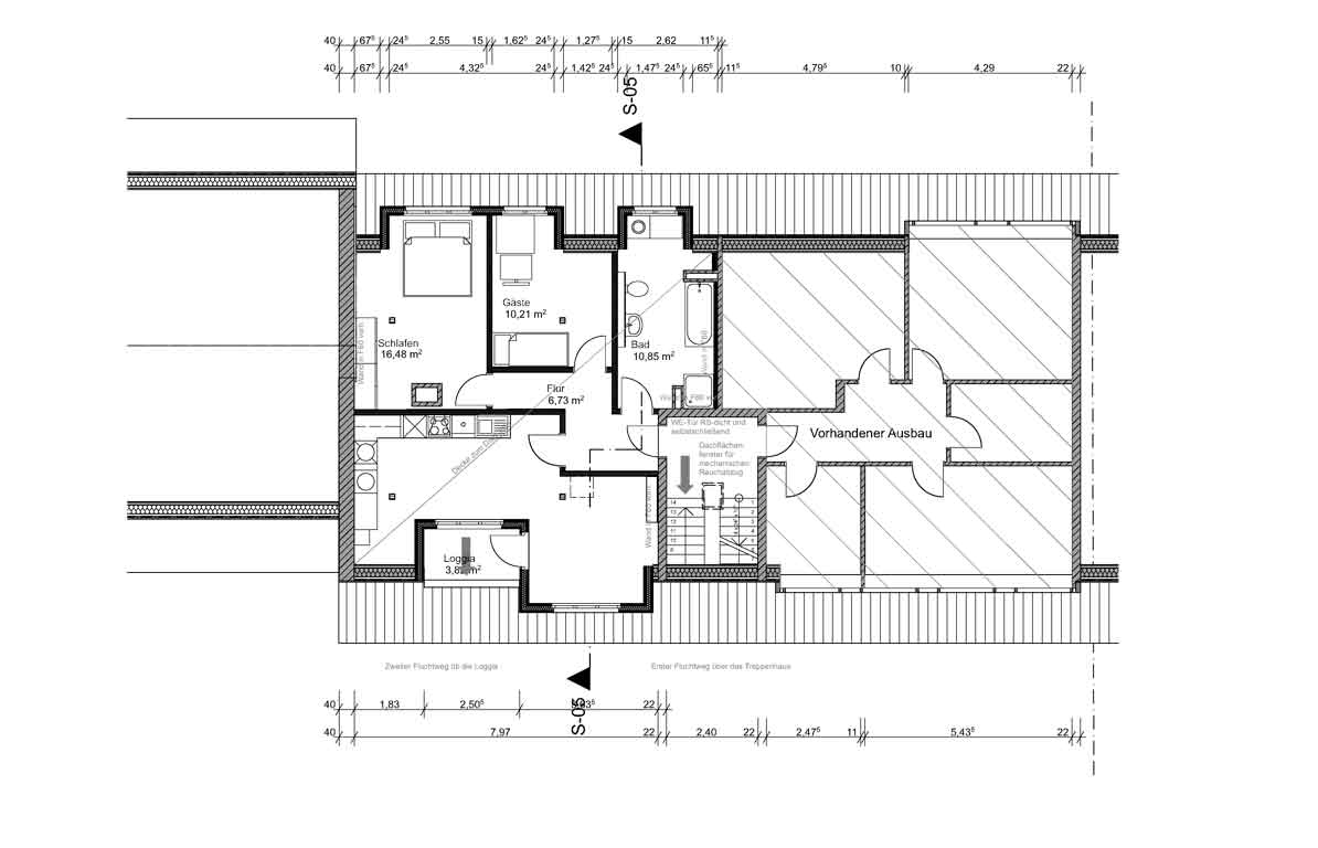
Dachausbau

2017 | Hamburg

Ausführungsplanung für den Rohbau gemäß der vorliegender Statik.Die TGA (technische Gebäudeausrüstung) wird seitens des Bauherrn geplant und ausgeführt und waren nicht Bestandteil der Ausführungsplanung.