An den Fischteichen

Daten


Sierig

Einfamilienhaus

2018 | Hamburg

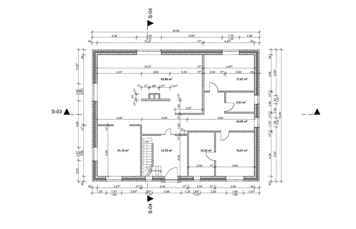
Erstellen von digitalen Planunterlagen nach einem Aufmass des gesamten Bauwerkes.Aufgrund der geringfügige Abweichungen in der Kubatur des Gebäudes wurden für das Bauamt neue Planunterlagen mit den aktuellen Abmessungen erstellt.