Elbuferstrasse

Daten


Sierig

Dopplehaus

2018 | Hamburg

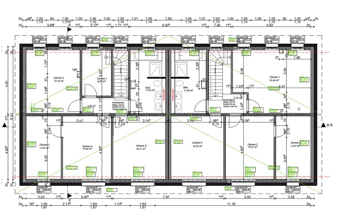
Ausführungsplanung für den Rohbau gemäß der vorliegender Statik.Die TGA (technische Gebäudeausrüstung) wird seitens des Bauherrn geplant und ausgeführt und waren nicht Bestandteil der Ausführungsplanung.