Dobbelersweg

Daten


Sierig

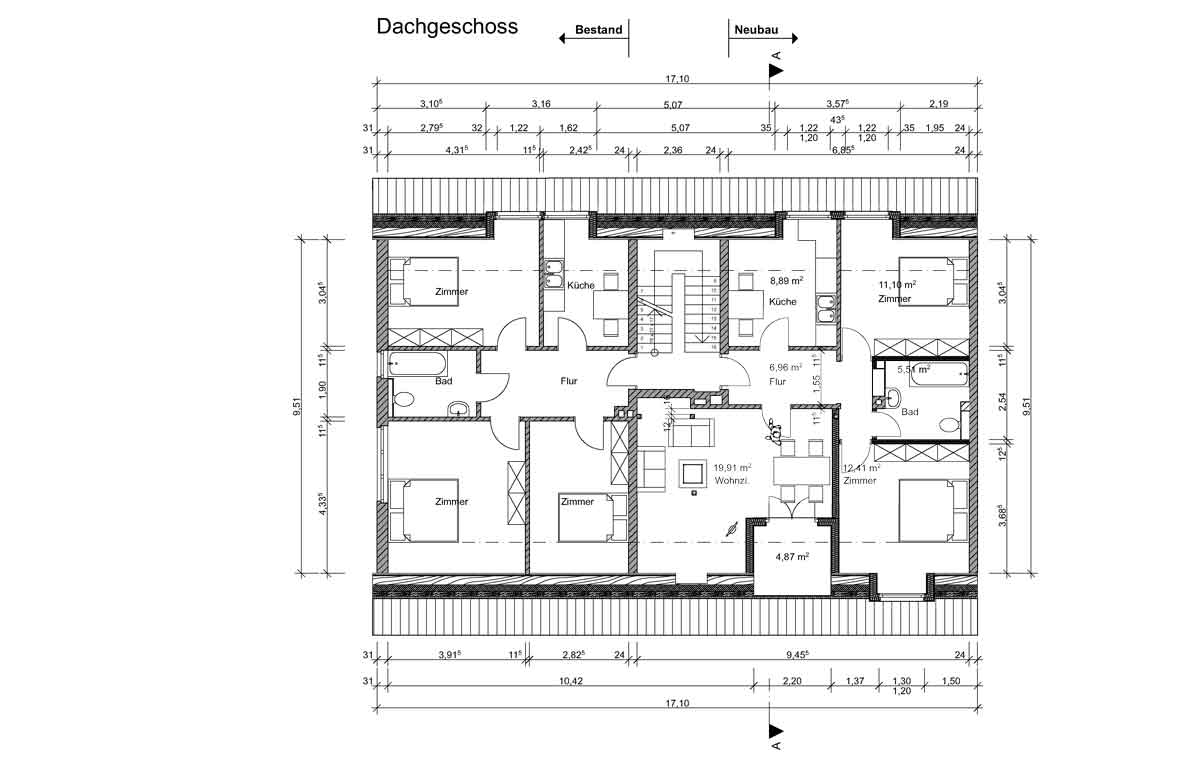
Dachausbau

2017 | Hamburg

Der ergänzende Dachausbau sollte den Bedürfnissen jüngerer Menschen entsprechen und ein modernes Raumgefühl entwickeln. Durch zwei Gauben und eine Loggia wurden helle Räume geschaffen, die einen weit schweifenden Ausblick auf die umgebende Dachlandschaft zulassen und einen Austritt ermöglichen.